Vlastnosti plastových balkónových dverí
Skladom máme jednokrídlové a dvojkrídlové balkónové dvere najčastejšie požadovaných rozmerov a dodávame ich s izolačným dvojsklom. Ak potrebujete inú farbu, odlišný rozmer alebo napríklad zasklenie trojsklom či nepriehľadným ornamentovým sklom, využite náš konfigurátor, kde je možné všetko jednoducho nastaviť.
Balkónové dvere predávame v týchto profilových systémoch
V konfigurátore si môžete vybrať tieto profilové systémy – REHAU SMARTLINE, REHAU SYNEGO AD a REHAU SYNEGO MD. Prvé dva profily môžu byť v klasickom variante s rovným krídlom, alebo vo verzii Round Line s vyčnievajúcim zaobleným krídlom. Profil REHAU SYNEGO MD dodávame iba v klasickom prevedení.
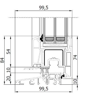
Profilový systém REHAU SMARTLINE+
Ide o päťkomorový profilový systém nemeckej spoločnosti REHAU AG + Co. Ponúka výborný pomer ceny a kvality. Štandardne sú balkónové dvere REHAU Smartline+ dodávané s dvojsklom (3 mm), v konfigurátore je možné navoliť trojsklo a teplý dištančný rámček, ktorý obmedzuje výskyt rosenia a zlepšuje izolačné vlastnosti.Celkový prestup tepla Uw je pri balkónových dverách REHAU Smartline+ nasledujúci:
- V prípade dvojskla a oceľového dištančného rámčeka je Uw=1,3 W/m²K.
- V prípade trojskla a plastového dištančného rámčeka TGI je Uw=0,90 W/m²K.
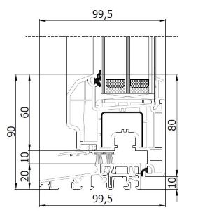
Profilový systém REHAU SYNEGO AD
Ak stavate dom v nízkoenergetickom alebo pasívnom štandarde, odporúčame vám zvoliť v online konfigurátore šesťkomorový profilový systém SYNEGO nemeckej spoločnosti REHAU AG + Co, ktorý má lepší izolačné vlastnosti než profil PREMIUM.Už v štandarde majú balkónové dvere REHAU SYNEGO AD pokovené izolačné trojsklo (3 mm) s koeficientom prestupu Ug=0,5 W/m²K. Tepelný prestup celými dverami Uw=0,78 W/m²K (pri použití trojskla a plastového rámiku). Za príplatok je možné objednať vylepšený plastový medzisklenný rámik, ktorý minimalizuje výskyt rosenia. TERAZ AKCIA: plastový rámik bez príplatku.
Balkónové dvere PREMIUM a REHAU SYNEGO AD
- Vo variante klasik i round line.
- Na objednávku s bezbariérovým hliníkovým prahom.
- 6 komorový profil.
- Hĺbka rámu 80 mm.
- Súčasťou je protiprievanová poistka.
- Kovanie Winkhaus rad activPilot.
- K dispozícii v 29 farbách a dekóroch.
Certifikáty
Profilový systém REHAU SYNEGO MD
Najlepšia izolácia balkónových dverí v profilovom systéme REHAU SYNEGO MD. Dvere sú presklené trojitým zasklením s teplým medziskleneným rámom a majú trojité tesnenie (v tomto sa líšia od dverí REHAU SYNEGO AD, ktoré majú dvojité tesnenie).
Okrem toho sa plochý zvar V-Perfect používa bez ďalších nákladov. To nielenže vyzerá lepšie, ale tiež zabraňuje degradácii materiálu UV žiarením vo zvare. Používajú sa kovania s plným obvodom od rakúskeho výrobcu Maco (séria Multi-Matic). V konfigurátore si môžete vybrať rozmery a farbu balkónových dverí a prípadne aj ornamentné zasklenie.
Základné parametre balkónových dverí REHAU SYNEGO MD
- 7-komorový profilový systém od nemeckej spoločnosti REHAU AG + Co.
- Konštrukčná hĺbka 80 mm.
- Kovanie Maco Multi-Matic s bezpečnostnými bodmi.
- Štandardne sa dodáva trojsklo (Ug = 0,5 W/m²K), teplý medzisklenený rám, trojité tesnenie,
- Celková priepustnosť Uw od 0,77 W/m²K.
- Obojstranný dekor má farebné jadro.
- K dispozícii je 9 farieb + základná biela.
Štandardné farby
Spoločné vlastnosti balkónových dverí
Môžete si zvoliť nízky hliníkový prah
Za príplatok je možné tiež doplnenie pozdĺžnej priečky, nadsvetlíka alebo bočného fixného francúzskeho okna. Balkónové dvere majú prah vysoký 7,2 cm, pri využití konfigurátora však je možné navoliť aj nízky bezbariérový hliníkový prah vysoký 2 cm. Dvere idú otvárať len dovnútra, krídlo je možné vyklopiť na ventiláciu. Pri dvojkrídlových balkónových dverách sa otvárajú obe krídla, uprostred nie je stĺpik.Súčasťou je vonkajšie madielko a fajčiarska poistka
Dvere sú dodávané s hliníkovou kľučkou, z vonkajšej strany je madielko pre pritiahnutie krídla. V konfigurátore si môžete pri balkónových dverách s profilom klasik zvoliť kľučku z oboch strán.
Súčasťou dverí je sada krytiek vo farbe dverí na všetky časti kovania, 5 komorový podkladový 30 mm vysoký profil (parapetný doraz) a protiprievanová ("fajčiarska") poistka, vďaka nej dvere držia uzavreté aj pri pobyte na balkóne. Zasklenie je vhodné pre inštaláciu do nadmorskej výšky 600 metrov nad morom. Pre inštaláciu vo väčších nadmorských výškach prosím kontaktujte naše oddelenie zákazníckej starostlivosti.

.png)
























