Vlastnosti predávaných plastových okien
K dispozícii máme kompletnú ponuku profilového systému REHAU
V oknách a dverách sú používané profilové systémy od nemeckej spoločnosti REHAU AG + Co:- základný a cenovo najdostupnejší 5-komorový profil REHAU Smartline+ – k dispozícii v tovare skladom aj na mieru cez online konfigurátor
- ekonomický 6-komorový profil REHAU Synego AD – dostupný len v online konfigurátore.
- najkvalitnejší a najúspornejší 7-komorový profil REHAU Synego MD – dostupný len v online konfigurátore.
| Druh profilu | Počet komôr | Počet tesnení | Štandardné zasklenie | Tepelný prestup celým oknom Uw | Vzhľad |
|---|---|---|---|---|---|
| REHAU Smartline+ | 5 | 2 | dvojsklo (trojsklo voliteľné v konfigurátore) | 1,3 W/m²K (dvojsklo), 0,90 W/m²K (trojsklo) | rovný, zaoblený |
| REHAU Synego AD | 6 | 2 | trojsklo | 0,78 W/m²K | rovný, zaoblený |
| REHAU Synego MD | 7 | 3 | trojsklo | 0,77 W/m²K | rovný, plochý zvar V-Perfect |
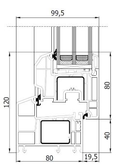
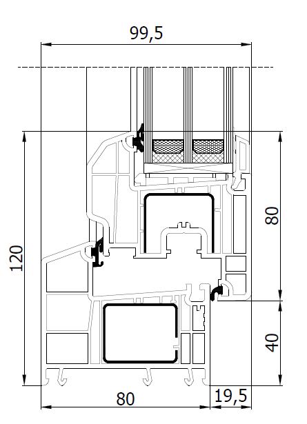
Profilový systém REHAU SMARTLINE+
- Plastové okná REHAU Smartline+ vo verzii klasik (s rovným krídlom)
- Plastové okná REHAU Smartline+ vo verzii elegancie (so zaobleným krídlom)
Chcem sa dozvedieť viac o výrobe a dodávateľoch okien REHAU Smartline+.
Plastové okná REHAU Smartline+ ponúkajú vynikajúci pomer ceny a kvality. Ako je to možné? Plne automatizovaná výroba, použitie najmodernejších technológií a distribúcia priamo k zákazníkovi bez zbytočných medzičlánkov.
Štandardne predávame plastové okná REHAU Smartline+ s dvojsklom a vo klasik, teda s rovným krídlom. Pokiaľ preferujete zaoblené predsadené krídlo, objednajte si okná a dvere cez online konfigurátor.
Základná charakteristika okien REHAU Smartline+
- 5-komorový profilový systém nemeckej spoločnosti REHAU AG + Co.
- Pozinkované oceľové výstuhy zaisťujú tuhosť a stabilitu okien.
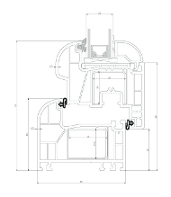
- Stavebná hĺbka 80 mm.
- Zvukový útlm 33 dB.
- Veľmi dobré tepelnoizolačné vlastnosti (usporíte na výdavkoch za energie).
- Výrobok je osadený izolačnými sklami z produkcie koncernu skupiny DOVISTA alebo britskej spoločnosti Pilkington.
- V štandarde pokovované izolačné dvojsklo s koeficientom prestupu Ug=1.0/1.1 W/m²K. Pri použití dvojskla tepelný prestup celým oknom Uw=1.3 W/m²K. Pokiaľ potrebujete lepšie izolačné vlastnosti, objednávajte okná REHAU Smartline+ cez konfigurátor, v ktorom si navolíte trojsklá, potom je Uw=0,90 W/m²K.
- Za príplatok je možné objednať vylepšený plastový medziskelný rámček, ktorý minimalizuje výskyt rosenia.
- Zasklenie je vhodné na inštaláciu do nadmorskej výšky 600 metrov nad morom. Pre inštaláciu vo väčších nadmorských výškach prosím kontaktujte naše oddelenie zákazníckej starostlivosti.
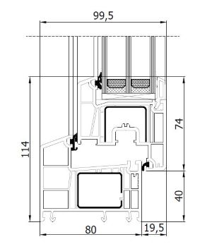
Profilový systém REHAU SYNEGO AD
- Plastové okná REHAU Synego AD vo verzii round line (so zaobleným predsadeným krídlom)
- Plastové okná REHAU Synego AD vo verzii klasik (s rovným krídlom)
Základná charakteristika okien REHAU SYNEGO AD
- 6-komorový profilový systém SYNEGO nemeckej spoločnosti REHAU AG + Co.
- Dômyselná konštrukcia vnútorných komôr a predkomôr zaručuje vysokú pevnosť a stabilitu.
- Stavebná hĺbka 80 mm (vyššia statická pevnosť).
- Perfektné tepelno izolačné vlastnosti.
- Zvukový útlm 34 dB.
- Okná sú osadené izolačnými sklami z produkcie skupiny DOVISTA alebo britskej spoločnosti Pilkington.
- V štandarde pokovované izolačné trojsklo (3 mm) s koeficientom prestupu Ug=0,5 W/m²K.
- Tepelný prestup celým oknom Uw=0,78 W/m²K (pri použití trojskla a plastového rámiku).
- Za príplatok je možné objednať vylepšený plastový medzisklenný rámik, ktorý minimalizuje výskyt rosenia. TERAZ AKCIA: plastový rámik bez príplatku.
- Zasklenie je vhodné pre inštaláciu do nadmorskej výšky 600 metrov nad morom. Pre inštaláciu vo väčších nadmorských výškach prosím kontaktujte naše oddelenie zákazníckej starostlivosti.
Naša spoločnosť si overuje kvalitu produktov nezávislou štátnou skúšobňou ZSTV Zlín, ktorá potvrdzuje kvalitu a parametre výrobkov, ktoré Vám dodávame.
- Vďaka svojim vynikajúcim parametrom boli okná Štátnym fondom životného prostredia ČR zahrnuté do programu NOVÁ ZELENÁ ÚSPORÁM.
- Naša spoločnosť získala certifikát Bisnode. Členstvo v Registri solventných firiem je znamením bezpečného a korektného vzťahu s našimi budúcimi zákazníkmi. Certifikát Register solventných firiem garantuje našim zákazníkom finančnú stabilitu, dobrú platebnú morálku, solventnosť a spoľahlivosť.
- Vieme čo ponúkame a o kvalite našich produktov sme presvedčení. Radi preto poskytneme referencie od viacej ako 50.000 zákazníkov, ktorých sme v Českej republike, Slovenskej republike, v Rakúsku a Nemecku doposiaľ obslúžili.
Vyberte si z našej širokej ponuky skladových okien!
Podrobnejšie informácie k oknám REHAU Smartline+ a REHAU SYNEGO AD
Kovanie
- Celoobvodové kovanie nemeckého výrobcu Winkhaus (rad activPilot).
- Bezpečnostné body znižujú riziko prekonania zlodejmi a zvyšujú pohodlie užívateľa.
- Poistka proti chybnej manipulácii.
- U OS (otváravo-sklopných) krídel mikroventilácia alebo viacpolohové vetranie (až 5 polôh).
- Osemhranný uzatvárací čap – hríbik (ľahká regulácia prítlaku otočením hríbiku).
- Modul prizdvihávania krídla (mierne krídlo nadzdviháva a zaisťuje jeho hladké zatváranie).
- Ložisko s brzdou (nožnicové ložisko je vybavené trecou brzdou, ktorá spomaľuje pohyb krídla).
- Dva bezpečnostné protiplechy proti vlámaniu už v štandarde zvyšujú bezpečnostnú úroveň okna.
- Bezpečnostné body, v spolupráci s hríbikom zvyšujú odolnosť okna proti vlámaniu.
- Široký rozsah regulácie kompenzuje prípadné montážne nepresnosti.
- Certifikát odolnosti na 25 000 cyklov.
- Zosilnené pánty (nosnosť krídla až 120kg).
- Viac informácií o kovaní nájdete na stránkach výrobcu www.winkhaus.cz v sekcii „okenní technika“.
Certifikáty
Vzhľad
- Okná REHAU Smartline+ a REHAU Synego AD sú k dispozícii v rovnom, alebo predsadenom zaoblenom prevedení.
- Predsadené krídlo vytvára okapnicu, ktorá obmedzuje riziko zatekania pri prudkých dážďoch.
- Okná, ktoré máme skladom, sú k dispozícii v 3 farebných prevedeniach (biela, zlatý dub, antracit – vždy len z vonkajšej strany).
- Cez online konfigurátor je možné pri oknách REHAU Smartline+ a REHAU Synego AD zvoliť až 28 farieb – 10 štandardných a 18 príplatkových.
- Doba dodania pri štandardných farbách (okrem černá ulti matt) je 21 až 28 dní, pri príplatkových (vrátane černá ulti matt) 4 až 6 týždňov.
Štandardné farby
Príplatkové farby
Tesnenie
- 2 vkladané dorazové tesnenia EPDM (ethylen-propalen-dien-polymer).
- Výhodou tesnenia EPDM je vysoká odolnosť proti starnutiu a povetrnostným vplyvom. Okná tak tesnia aj po rokoch.
- Elegantná šedá farba tesnenia pre biele okná, čierna farba tesnenia pre okná v dekore.
- Životnosť produktu je radovo desiatky rokov, ak vznikne s odstupom času potreba tesnenie vymeniť, ide o veľmi lacnú záležitosť. Vďaka špeciálnym drážkam, ktorými sú opatrené naše plastové okná, jednoducho pôvodné tesnenie z okna vyjmete a nové tesnenie do drážok vsadíte. Lacné, rýchle a jednoduché.
Výstuhy
- Okná a dvere REHAU Smartline+ a REHAU SYNEGO AF sú v štandarde opatrené celoobvodovými výstužami, ktoré sú osadené ako v ráme, tak aj v krídle.
- Materiál výstuží je vždy pozinkovaná oceľ odolná proti korózii.
- Hrúbka výstuhy je 1 – 2mm (podľa typu, prevedenia a veľkosti daného okna).
Možnosť ornamentného zasklenia
- V našom konfigurátore si za príplatok môžete navoliť ornamentné zasklenia a to tieto typy: kôra, chinchila (činčila), delta, delta pieskovaná, matné mliečne, matné pieskované, master carre, crepi, silvit.
- Ornamentné sklá sú nepriehľadné, sú tak vhodné napríklad do okien v kúpeľni.
- Ozdobné sklo sa spravidla vkladá štruktúrovanou stranou smerom do priestoru medzi sklami pre jednoduchú údržbu sklenených výplní.
Niekoľko typov klúk
- V cene každého plastového okna (či skladového, alebo vyrobeného na mieru) je zahrnutá elegantná hliníková kľuka. Pre biela okná je v bielej farbe, v prípade, že máte z interiérovej strany nejaký dekor, je kľuka tmavo hnedá.
- Za príplatok je možné dodať kľuku v striebornej a bronzovej farbe.
- Tiež si môžete pre zvýšenie bezpečnosti priobjednať kľučku s detskou poistkou a kľučku uzamykateľnú, viac informácií zistíte v sekcii okenné kľučky.
Ponuka medzisklenných mriežok
- Ak chcete mať okno rozdelené na menšie tabuľky, môžete si za príplatok priobjednať vloženie medzisklenných mriežok.
- Jedná sa o hliníkové profily opatrené farebným náterom alebo potlačou v drevodekore, ktoré sa v požadovanom rastri upevnia k dištančným rámčekom a spolu s nimi sa vložia do priestoru medzi sklami. Sú umiestnené medzi sklami, takže umývanie okien je úplne rovnaké ako u bežných okien.
- Medzisklené mriežky môžu byť rôzne široké (8, 18, 26, 45 mm) a poskladané v mnohých variantách (horizontálne aj vertikálne).
- K dispozícii sú v bielej, striebornej a zlatej farbe a v imitácii dreva.
- Pri oknách s trojsklami sa mriežky vkladajú len do jedného priestoru medzi sklami.
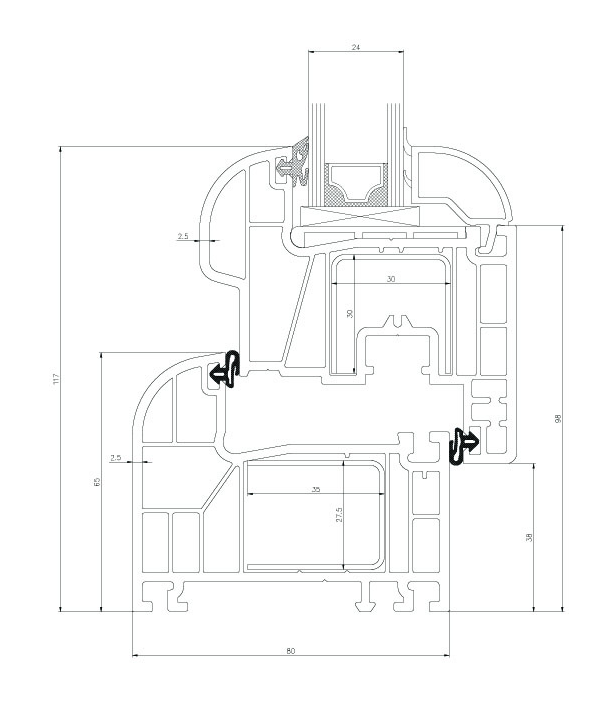
Profilový systém REHAU SYNEGO MD
- Plastové okná REHAU SYNEGO MD sú dodávané len v klasickom prevedení (s rovným krídlom)
Sedemkomorový profil REHAU SYNEGO MD vyrábaný nemeckou spoločnosťou REHAU AG + Co má najlepšie izolačné vlastnosti zo všetkých našich profilov. Odporúčame ho najmä pre nízkoenergetické a pasívne stavby.
Základné charakteristiky okien REHAU SYNEGO MD
- 7-komorový profilový systém od nemeckej spoločnosti REHAU AG + Co.
- Moderný rovný vzhľad krídla. Štandardne sa používa plochý zvar V-Perfect, ktorý je silnejší (až o 25%), vizuálne krajší a eliminuje degradáciu materiálu v dôsledku UV žiarenia vo zvare.
- Konštrukčná hĺbka 80 mm.
- Štandardne sa dodáva trojsklo (Ug = 0,5 W/m²K) a teplý medzisklenený rám.
- Má najlepšie izolačné vlastnosti zo všetkých našich profilov, Uw = 0,77 W/m²K (platí pre referenčné okno s rozmermi 1230 × 1480 mm).
- Absorpcia zvuku 34 dB (pre okno do 2,7 m²).
- Trojité tesnenie – na rozdiel od iných okien v našej ponuke má profil REHAU SYNEGO MD aj centrálne tesnenie, ktoré zvyšuje izolačné vlastnosti.
- K dispozícii je 10 farieb. Obojstranný dekor má farebné jadro. Keď otvoríte okno, biela nesvieti, ale jadro je sfarbené. Farba jadra je pod farbou okna – antracit (sivý) pre okná v antracitovej a šedej farbe, hnedá pre zlatý dub a svetlohnedé dekory, tmavohnedá pre mahagón a tmavohnedé dekory.
- V prípade interiérových farebných dekorov je hnedá (bronzová) rukoväť.
Štandardné farby
Kovanie
- Celoobvodové kovanie ROTO NX od nemeckej spoločnosti Roto Frank Holding AG poprípade Winkhaus activePilot.
- Bezpečnostné body znižujú riziko, že ich zlodeji premôžu, a zvyšujú užívateľský komfort.
- Ochrana pred nesprávnym zaobchádzaním.
- Pre mikroventiláciu otváravo-sklopných krídel.
- Osemhranný uzamykací kolík – huba (ľahká regučipka tlaku otáčaním huby).
- Modul zdvihu krídla (mierne zdvíha krídlo a zaisťuje jeho hladké zatváranie).
- Ložisko s brzdou (nožnicové ložisko je vybavené trecou brzdou, ktorá spomaľuje pohyb krídla).
- Štandardne sú k dispozícii dve bezpečnostné štítky proti vlámaniu, ktoré zvyšujú úroveň bezpečnosti okna.
- Bezpečnostné body v spolupráci s hubou zvyšujú odolnosť okna proti vlámaniu.
- Široká škála predpisov kompenzuje možné nepresnosti v inštalácii.
- Zosilnené pánty – nosnosť krídla až 150 kg.
- Viac informácií o kovaní nájdete na tejto stránke.
Kompletácia, skúšky, certifikácia
Kompletácia prebieha na moderných automatických linkách rakúskej spoločnosti GRUBER&CO groupVýroba skupiny DOVISTA disponuje vlastnou skúšobňou. Niekoľkokrát denne je náhodou vybrané okno, ktoré je testované, či spĺňa požadované parametre.
Hlavné testy profilového systému: test rozmerových vlastností, test rozťažnosti v peci pri vysokých teplotách, test v teplotách hlboko pod bodom mrazu, tvarové testy, test priehybu, test povrchu, test pevnosti zvarov, test pôsobenia sily sústredenej na určitý bod. Hlavné testy finálneho výrobku: vodotesnosť, prievzdušnosť, odolnost proti zaťaženiu vetrom a ďalšie.

.png)

.jpg)










































































