Vedľajšie vchodové dvere REHAU Smartline+, plné, pravé 880 x 2080

Kód produktu:5356
Kategorie:Jednokrídlové
Šírka:880
Výška:2080
Farba:bielabiela
Sklo:Panel PVC biely 25 mmPanel PVC biely 25 mm
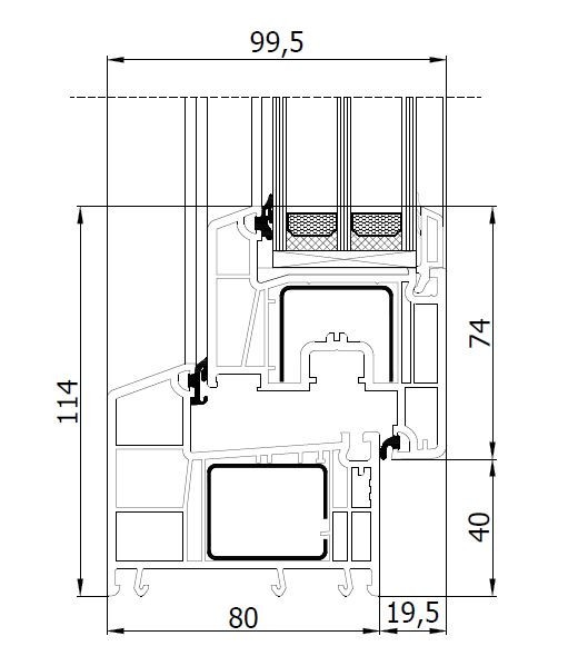
Technický nákres:Technický nákres

Vysvetlenie nákresu

Kovanie:celoobovodové kovanie Winkhaus activPilot
Profilový systém:systém nemeckej spoločnosti REHAU AG + Co.
Výrobca:zodpovednosť za bezpečnosť výrobku: Kontakt
Zobraziť viac informácií

Skladová dostupnosť: 4 ks

Ihneď k odberu

V prípade, ak objednávate k skladovým výrobkom aj príslušenstvo (žalúzie, sieťky, alebo parapety), ktoré pre Vás vyrábame na mieru, predĺži sa doba naskladnenia (dodania) až o 10 pracovných dní. Viac na: Termíny dodávky.
463,70 € s DPH

377,00 € bez DPH

Kliknutím na tlačidlo "Kúpiť" vložíte okno do košíka bez možnosti dokúpiť k oknu príslušenstva (žalúzie, siete proti hmyzu alebo parapety)

Plastové vedľajšie vchodové dvere – svetlosť (priechodná šírka) 740 mm

Jednokrídlové plastové vedľajšie dvere REHAU Smartline+ sú vhodné na vstup na záhradu, do garáže alebo ako zadný vstup do prevádzok a obchodov. Pri rodinných domoch sa dajú použiť aj ako klasické vchodové dvere, ale neodporúčame ich do verejných budov či bytových domov, kde je vyššia frekvencia pohybu. Oproti hlavným vstupným dverám, ktoré dodávame na objednávku cez konfigurátor, sú lacnejšie, ale nemajú široké krídlo a je možné ich otvárať iba donútra. Vedľajšie dvere ponúkame s rozmermi: šírka 88 cm, výška 208 cm, priechodná šírka je 74 cm.

Sú z oboch strán biele. V bielej farbe je tiež obojstranná kľučka a krytky kovania. Súčiniteľ prestupu tepla dverami Uw=1.3 W/m²K.

Pokiaľ potrebujete iný dekor, odlišný rozmer, zasklenie trojsklom či nepriehľadným ornamentným sklom, objednávajte cez konfigurátor).
 
Plastové vstupné dvere

Štandardná výbava vedľajších vstupných dverí:

  • viacbodové kovanie,
  • zárubňa,
  • obojstranná hliníková kľučka s aretáciou (zmena na kľučka – guľa nie je možná),
  • nízký hliníkový práh (jako u běžných vchodových dveří),
  • stavebný zámok s 3 kusmi kľúčov,
  • prevedenie ako dovnútra otváravé,
  • dokument "Návody pre okná, dvere a príslušenstvo".

Výplne

  • Plná PUR výplň (šedá plocha v technickom nákrese).

Výroba a profilový systém

  • 5komorový profilový systém nemeckej spoločnosti REHAU AG + Co.
  • Pozinkované oceľové výstuhy zaisťujú tuhosť a stabilitu dverí.
  • Stavebná hĺbka 80 mm, užšie profily zaisťujú viac svetla .
  • Prevedenie klasik – krídla i rámy majú moderný rovný vzhľad (všetky skladové dvere sú v prevedení klasik, pokiaľ preferujete zaoblený tvar, objednávajte cez konfigurátor).
  • Veľmi dobrá tepeľná izolácia – pri použití štandardného izolačného dvojskla tepelný prestup celými dverami Uw=1.3 W/m²K (ak potrebujete lepšie izolačné vlastnosti, objednávajte dvere REHAU Smartline+ cez konfigurátor)
  • Dva body ochrany proti vlúpaniu.
5 komorový profilový systém nemeckej spoločnosti REHAU AG + Co.
 
Tesnenie a profil plastových vchodových dverí

Tesnenie

  • 2 vkladané dorazové tesnenia EPDM (etylén-propalén-dién-polymér) v šedej farbe. 
  • Výhodou tesnenia EPDM je vysoká odolnosť proti starnutiu a poveternostným vplyvom. Vstupné dvere tak tesnia aj po rokoch.
  • Životnosť produktu je rádovo desiatky rokov, ak vznikne s odstupom času potreba tesnenia vymeniť, ide o veľmi lacnú záležitosť. Vďaka špeciálnym drážkam, ktorými sú opatrené naše vchodové dvere, jednoducho pôvodné tesnenie z dverí vyberiete a nové tesnenie do drážok vsadíte. Lacné, rýchle a jednoduché.

Výstuhy

  • Vchodové dvere sú v štandarde vybavené výstužami, ktoré sú osadené ako v ráme, tak v krídle.
  • Materiál výstužou je pozinkovaná oceľ odolná proti korózii.
  • Hrúbka výstuhy je 1–2 mm (podľa veľkosti, typu a prevedenia).
Výstuha vstupných dverí
Zasklenie plastových vedľajších vchodových dverí

Zasklenie

  • Výrobok je osadený izolačnými sklami z produkcie skupiny DOVISTA, popr. britskej značky Pilkington.
  • V štandarde pokovované izolačné dvojsklo s koeficientom prestupu Ug=1.0/1.1 W/m²K.
  • Nový rad zvukovo izolačných skiel – 33 dB.
  • Zasklenie je vhodné na inštaláciu do nadmorskej výšky 600 metrov nad morom. Pre inštaláciu vo väčších nadmorských výškach prosím kontaktujte naše oddelenie zákazníckej starostlivosti.

Kovanie

  • Celoobvodové kovanie nemeckého výrobcu Winkhaus (séria activPilot).
  • Bezpečnostné body znižujú riziko prekonania zlodeji a zvyšujú pohodlie užívateľa.
  • Poistka proti chybnej manipulácii.
  • Kľučka s aretáciou - viacbodový zámok Winkhaus easyLock
  • Osemhranný uzatvárací čap – hríbik (ľahká regulácia prítlaku otočením hríbika).
  • Ložisko s brzdou (nožnicové ložisko je vybavené trecou brzdou, ktorá spomaľuje pohyb krídla).
  • Dva bezpečnostné protiplechy proti vlámaniu už v štandarde zvyšujú bezpečnostnú úroveň dverí.
  • Bezpečnostné body, v spolupráci s hríbikom zvyšujú odolnosť dverí proti vlámaniu.
  • Pánty ako pri balkónových dverách – 2 pánty + 2 skryté prítlačné pánty.
  • Široký rozsah regulácie kompenzuje prípadné montážne nepresnosti.
  • Zosilnené pánty (nosnosť krídla až 120 kg).
Kovanie vedľajších vchodových dverí
Certifikácia plastových otvorových výplní

Kompletácia, skúšky, certifikácia

  • Kompletácia prebieha na moderných automatických linkách rakúskej spoločnosti GRUBER&CO group.
  • Výrobca skupiny DOVISTA disponuje vlastnou skúšobňou. Niekoľkokrát týždenne je vybrané okno, ktoré je testované, či spĺňa požadované parametre. (Hlavné testy profilového systému: test rozmerových vlastností, test rozťažnosti v peci pri vysokých teplotách, test v teplotách hlboko pod bodom mrazu, tvarové testy, test priehybu, test povrchu, test pevnosti zvarov, test pôsobenia sily sústredenej na určitý bod. Hlavné testy finálneho výrobku: vodotesnosť, prievzdušnosť, odolnosť proti zaťaženiu vetrom a ďalšie).
  • Spoločnosť si tiež overuje kvalitu produktov nezávislou štátnou skúšobňou, ktorá potvrdzuje kvalitu a parametre výrobkov, ktoré Vám dodávame (viď. aktuálne certifikáty).
  • Vieme, čo ponúkame ao kvalite našich produktov sme presvedčení. Radi preto poskytneme referencie od viac ako 50.000 zákazníkov, ktorých sme v Českej republike, Slovenskej republike, v Rakúsku, Nemecku a Maďarsku doteraz obslúžili.

Na čo sa nás najčastejšie pýtate?

Zobraziť časté otázky

Ohodnoťte produkt: 

Celkové hodnotenie

0 %
Nikto zatiaľ produkt nehodnotil

Zobrazené komentáre k produktu

Zatiaľ nebol pridaný žiadny komentár

Sme záruka vašej spokojnosti

5 krajinách sme už odbavili 73 045 objednávok

A dodali vám viac ako 215 000 okien a dverí

“Objednávku som dostal presne a čo najrýchlejšie, aj keď musela byť zakúpená zo zahraničného skladu. S tovarom som spokojný, aj s ponukou obchodu,...”

Mihály T.

Zobraziť

“Dobrý deň, ďakujeme za okná, ktoré sú úžasné. Sme spokojní a tešíme sa na ďalšiu objednávku, keďže ešte budeme potrebovať nejaké to okno. Ďakujeme.”

Erika H.

Zobraziť

“Dobrý deň,s oknami som spokojna aj s komunikaciou ohladne chybajuceho spojovovacieho profilu,takze komunikacia obchodu super a hlavne cena vyborna.”

Gabriela D.

Zobraziť

“Dobrý deň.Som nad mieru spokojna s nakupom okien a dverí z vášho eshopu.Komunikacia obchodu bola super a o cene ani nehovorím.”

Martina P.

Zobraziť