Dvojkrídlové plastové okno so štulpom REHAU Smartline+ 1250 x 1300

Kód produktu:5200
Kategorie:Dvojkrídlové
Šírka:1250
Výška:1300
Stavebný otvor:1280 / 1350Výrobky by mali byť o cca 2 – 3 cm menšie ako stavebný otvor. Tieto 2 – 3 cm slúžia na manipuláciu s oknom v otvore pre vyrovnanie do váhy a tiež ako dostatočný priestor pre ukotvenie a vyplnenie pripojovacej škáry. Výška okien v našom e-shope je uvedená bez 30 mm podkladového profilu. Podkladový profil je tiež nazývaný ako parapetný doraz alebo transportný profil. Tento profil je vysoký 30 mm, je odnímateľný a je súčasťou každého nami dodávaného okna. Slúži jednak pre transport okien, aby okno pri prevoze nesedelo priamo na ráme, zároveň aj ako parapetný doraz pre vnútornú parapetu a ľahké ukotvenie vonkajšej parapety. Vnútorná parapeta sa potom k podkladovému profilu priráža.
Farba:bielabiela
Sklo:Dvojsklo 3/16A/4TPS (U=1,1)Dvojsklo 3/16A/4TPS (U=1,1)
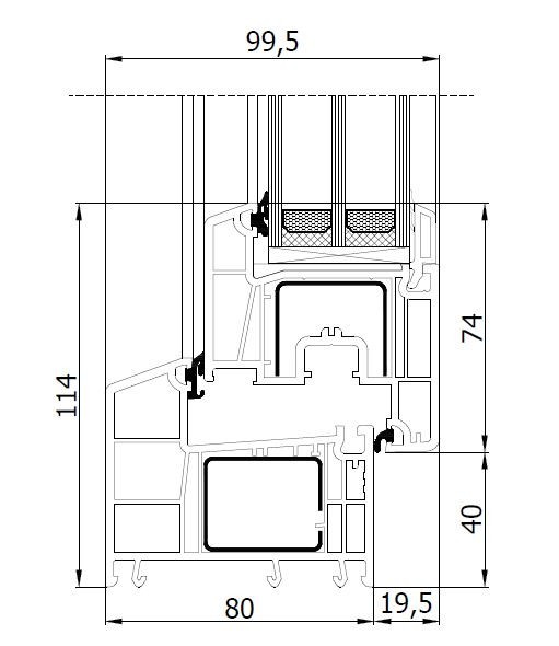
Technický nákres:Technický nákres

Vysvetlenie nákresu

Kovanie:celoobovodové kovanie Winkhaus activPilot
Profilový systém:systém nemeckej spoločnosti REHAU AG + Co.
Výrobca:zodpovednosť za bezpečnosť výrobku: Kontakt
Zobraziť viac informácií

Skladová dostupnosť: 6 ks

Ihneď k odberu

V prípade, ak objednávate k skladovým výrobkom aj príslušenstvo (žalúzie, sieťky, alebo parapety), ktoré pre Vás vyrábame na mieru, predĺži sa doba naskladnenia (dodania) až o 10 pracovných dní. Viac na: Termíny dodávky.
265,70 € s DPH

216,00 € bez DPH

Kliknutím na tlačidlo "Kúpiť" vložíte okno do košíka bez možnosti dokúpiť k oknu príslušenstva (žalúzie, siete proti hmyzu alebo parapety)
  • Parapety
  • Žalúzie
  • Sieťky
Kúpiť s doplnkamiKliknutím na tlačidlo "Kúpiť s príslušenstvom" bude okno vložené do konfigurátora, kde v pravej časti môžete k oknu doobjednať príslušenstvo (žalúzie, siete proti hmyzu alebo parapety). V prípade, ak objednávate k skladovým výrobkom aj príslušenstvo (žalúzie, sieťky, alebo parapety), ktoré pre Vás vyrábame na mieru, predĺži sa doba naskladnenia (dodania) až o 10 pracovných dní.

K oknu si môžete zvoliť aj doplnky. Počítajte prosím s tým, že sa dodacia lehota predĺži – maximálne o 10 dní.

Plastové okná

Každé okno obsahuje:

  • Elegantnú hliníkovú rukoväť.
  • Kompletnú sadu okenných vrchnákov pre všetky časti príslušenstva.
  • 5komorový podkladný profil (parapetný doraz) vysoký 30 mm.
  • Dokument „Návody pre okna, dvere a príslušenstvo“.
  • Ochranný obal - kartonové rohy + niekoľko vrstiev strečovej fólie.
  • Väčšie výrobky sú vybavené popruhmi po stranách pre ľahšiu manipuláciu. Objednávky ďalších kusov doručujeme na drevených vratných stojanech.

Výroba a profilový systém

  • 5komorový profilový systém nemeckej spoločnosti REHAU AG + Co.
  • Pozinkované oceľové výztuhy zaisťujú tuhosť a stabilitu okien.
  • Stavebná hĺbka 80 mm, užšie profily zaisťujú viac svetla .
  • Prevedenie klasik - krídla i rámy majú moderný rovný vzhľad (všetky skladové okná sú v prevedenii klasik, ak preferujete zaoblený tvar, objednávajte cez konfigurátor).
  • Veľmi dobrá tepelná izolácia - pri použití štandardného izolačného dvojskla sa prestup tepla cez celé okno Uw=1,3 W/m2K (ak potrebujete lepšie izolačné vlastnosti, objednajte si okná REHAU Smartline+ cez konfigurátor, kde zvolíte trojsklo, potom Uw=0,90 W/m2K.).
  • Dva body ochrany proti vlámaniu.
5komorový profilový systém nemeckej spoločnosti REHAU AG + Co.
Tesnenie a profil plastového okna

Tesnenie

  • 2 vkládaná dorazová těsnění EPDM (etylén-propalén-dien-polymér) v šedej farbe. 
  • Výhodou tesnení EPDM je vysoká odolnosť voči starnutiu a poveternostným vplyvom. Okná sú tak utesnené aj po rokoch.
  • Životnosť výrobku je desiatky rokov, ak s plynutím času vznikne potreba výmeny tesnenia, je to veľmi lacná záležitosť. Vďaka špeciálnym drážkam, ktorými sú naše plastové okná vybavené, jednoducho odstránite z okna pôvodné tesnenie a do drážok vložíte nové tesnenie. Lacno, rýchlo a jednoducho.

Výstuhy

  • Okná sú štandardne vybavené výstužami, ktoré sa montujú ako v ráme, tak aj v krídle.
  • Výstužný materiál je pozinkovaná oceľ odolná voči korózii.
  • Hrúbka výstuže je 1-2 mm (v závislosti od veľkosti, typu a prevedenia).
Výstuha plastového okna
Zasklenie plastového okna

Zasklenie

  • Výrobok je osadený izolačným sklom z výroby skupiny DOVISTA alebo britskej značky Pilkington.
  • Štandardné izolačné dvojsklo s prevodovým koeficientom Ug=1,0/1,1 W/m2K.
  • Nová séria zvukovoizolačných skiel - 33 dB.
  • Zasklenie je vhodné na inštaláciu v nadmorskej výške 600 metrov nad morom. Pre inštaláciu vo vyšších nadmorských výškach kontaktujte naše oddelenie starostlivosti o zákazníkov.

Kovanie

  • Celoobvodové kovanie nemeckého výrobca Winkhaus rada activPilot).
  • Bezpečnostné body znižujú riziko vlámanie zlodejmi a zvyšujú užívateľský komfort.
  • Poistka proti chybnej manipulácii.
  • Pre OS (otváravo sklopné) krídla mikroventilácia.
  • Osemhranný uzamykací kolík - huba (ľahká regulácia tlaku otáčaním huby).
  • Zdvíhací modul krídla (mierne zdvihne krídlo a zabezpečí jeho hladké zatváranie).
  • Ložisko s brzdou (nožnicové ložisko je vybavené trecou brzdou, ktorá spomaľuje pohyb krídla).
  • Dve bezpečnostné clony proti vlámaniu štandardne zvyšujú úroveň bezpečnosti okna.
  • Bezpečnostné body v spolupráci s hubou zvyšujú odolnosť okna proti vlámaniu.
  • Široká škála predpisov kompenzuje možné nepresnosti pri inštalácii.
  • Zosilnené pánty (nosnosť krídla do 120 kg).
Kovánie plastového okna
Certifikácia plastových oken

Montáž, skúšky, certifikácia

  • Montáž prebieha na moderných automatických linkách rakúskej spoločnosti GRUBER&CO group.
  • Výrobca skupiny DOVISTA má vlastné testovacie zariadenie. Niekoľkokrát týždenne sa vyberie okno, ktoré sa testuje, aby sa zistilo, či spĺňa požadované parametre. (Hlavné skúšky profilového systému: skúška rozmerových vlastností, skúška rozťažnosti pece pri vysokých teplotách, skúška pri teplotách výrazne pod bodom mrazu, skúška tvaru, skúška deformácie, skúška povrchu, skúška pevnosti zvaru, skúška bodovo špecifickej sily. Hlavné skúšky konečného produktu: vodotesnosť, priepustnosť vzduchu, odolnosť proti zaťaženiu vetrom a iné).
  • Naša spoločnosť overuje kvalitu výrobkov nezávislým štátnym skúšobným laboratóriom, ktoré potvrdzuje kvalitu a parametre výrobkov, ktoré Vám dodávame (viď aktuálne certifikáty).
  • Vieme, čo ponúkame a sme presvedčení o kvalite našich výrobkov. Preto radi poskytneme referencie od viac ako 50 000 zákazníkov, ktorých sme doteraz obslúžili v Českej republike, na Slovensku, v Rakúsku, Nemecku a Maďarsku.

Na čo sa nás najčastejšie pýtate?

Zobraziť časté otázky

Ohodnoťte produkt: 

Celkové hodnotenie

0 %
Nikto zatiaľ produkt nehodnotil

Zobrazené komentáre k produktu

Zatiaľ nebol pridaný žiadny komentár

Sme záruka vašej spokojnosti

5 krajinách sme už odbavili 73 045 objednávok

A dodali vám viac ako 215 000 okien a dverí

“Objednávku som dostal presne a čo najrýchlejšie, aj keď musela byť zakúpená zo zahraničného skladu. S tovarom som spokojný, aj s ponukou obchodu,...”

Mihály T.

Zobraziť

“Dobrý deň, ďakujeme za okná, ktoré sú úžasné. Sme spokojní a tešíme sa na ďalšiu objednávku, keďže ešte budeme potrebovať nejaké to okno. Ďakujeme.”

Erika H.

Zobraziť

“Dobrý deň,s oknami som spokojna aj s komunikaciou ohladne chybajuceho spojovovacieho profilu,takze komunikacia obchodu super a hlavne cena vyborna.”

Gabriela D.

Zobraziť

“Dobrý deň.Som nad mieru spokojna s nakupom okien a dverí z vášho eshopu.Komunikacia obchodu bola super a o cene ani nehovorím.”

Martina P.

Zobraziť