Vlastnosti vedľajších plastových vchodových dverí REHAU Smartline+ a REHAU SYNEGO AD
Tento typ dverí môžete použiť k vstupu na záhradu, na terasu, do garáže alebo ako zadný vstup do domu. Majú nízky hliníkový prah, aby boli vhodné tiež pre bezbariérový vstup. Plní funkciu aj bežných vchodových dverí pri rodinných domoch, nie sú ale vhodné do verejných budov či bytových domov, kde je vyššia frekvencia pohybu. Vedľajšie vchodové dvere dodávame v prevedení dovnútra otvárateľné. Opačnú montáž, aby sa dvere otvárali von, nedoporučujeme.Skladom s odporúčaním do niekoľkých dní máme v najžiadanejších rozmeroch vedľajšie plastové vchodové dvere REHAU Smartline+, ktoré sú štandardne dodávané s dvojsklom. V prípade, že by ste dvere potrebovali s inými parametrami (rozmer zasklenia, farba, atď.) využite náš konfigurátor, dvere vám vyrobíme na mieru, dodacia doba býva 4 až 6 týždňov. V konfigurátore si môžete zvoliť dva profilové systémy – REHAU Smartline+ a REHAU SYNEGO AD, vždy v prevedení klasik s rovným krídlom.
Vedľajšie vchodové dvere predávame v dvoch profilových systémoch
Profilový systém REHAU Smartline+
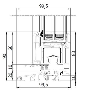
Ide o päťkomorový profilový systém nemeckej spoločnosti REHAU AG + Co. Ponúka výborný pomer ceny a kvality. Štandardne sú vedľajšie vstupné dvere REHAU Smartline+ dodávané s dvojsklom (3 mm).
Pre zvýšenie tepelnoizolačných vlastností v prípade stavby nízkoenergetických domov je možné opatriť dvere izolačným trojsklom a teplým rámčekom. Všetko si navolíte v online konfigurátoru.
Celkový prestup tepla Ud je pri vedľajších vchodových dverách REHAU Smartline+ nasledujúci:
- V prípade dvojskla a oceľového dištančného rámčeka je Ud=1,3 W/m²K.
- V prípade trojskla a plastového dištančného rámčeka TGI je U=d0,90 W/m²K.
Zasklenie je vhodné na inštaláciu do nadmorskej výšky 600 metrov nad morom. Pre inštaláciu vo väčších nadmorských výškach prosím kontaktujte naše oddelenie zákazníckej starostlivosti.
Vedľajšie vchodové dvere REHAU Smartline+ sú lacnejšie ako hlavné vchodové dvere. Oproti hlavným vchodovým dverám REHAU Smartline+ pri ich výrobe nie je použité široké krídlo, dajú sa otvárať iba dovnútra, majú 2 balkónové panty (hlavné dvere majú 3 pánty Joker).
Vedľajšie vchodové dvere REHAU Smartline+
- 5 komorovýprofilový systém nemeckej spoločnosti REHAU AG + Co.
- Len dovnútra otvárateľné.
- Celoobvodové kovanie Winkhaus.
- Nie je použité široké krídlo.
- K dispozícii v 29 farbách a dekóroch.
Profilový systém REHAU SYNEGO AD
Šesťkomorový profilový systém SYNEGO nemeckej spoločnosti REHAU AG + Co so stavebnou hĺbkou 80 mm je štandardne dodávaný s trojsklom. Celkový prestup tepla Ud=0,89 W/m²K. Vedľajšie vchodové dvere REHAU sú lacnejšie ako hlavné vchodové dvere REHAU, na rozdiel od hlavných dverí REHAU majú 2 balkónové závesy (hlavné dvere majú 3 závesy Joker) a používa sa kovanie Winkhaus easyLock (hlavné dvere majú kovanie Winkhaus autoLock).Vedľajšie vchodové dvere REHAU SYNEGO AD
- 6 komorový profilový systém SYNEGO nemeckej spoločnosti REHAU AG + Co.
- Len dovnútra otvárateľné.
- Celoobvodové kovanie rad easyLock.
- Nízky hlinikový prah a majú široké krídlo.
- Obojstranná hliníková kľučka.
- So štandardným izolačným trojsklom dosahujú celkového prestupu Ud=0,89 W/m²K..
- K dispozícii v 29 farbách a dekóroch.
Vedľajšie vchodové dvere máme vystavené na sklade v Kuřimi
Ak by ste si chceli vedľajšie vchodové dvere REHAU Smartline+ a REHAU SYNEGO AD prehliadnuť ešte pred objednaním, máme ich vystavené v sídle našej firmy v Kuřimi. V sklade uvidíte:- Vedľajšie vchodové dvere REHAU Smartline+ v obojstrannom dekóre Winchester, ktoré sú z väčšej časti plné, zdobí ich dlhý úzky pruh vyplnený ornamentovým zasklením typ kôra.
- Vedľajšie vchodové dvere REHAU SYNEGO AD v šedej farbe so štruktúrou dreva, ktoré majú päť plných polí a jeden presklený pruh s čírym sklom.
Kovanie so zvýšenou bezpečnosťou
Vedľajšie plastové dvere majú celoobvodové kovanie od nemeckého výrobcu Winkhaus (rad easyLock). Ide o viacbodový zámok s 2 excentrickými valčekmi a 2 hríbovými čapmi, ktoré zaisťujú správny tlak krídla proti rámu po celej jeho výške a tiež tesnosť dverí. Zámok je aktivovaný pomocou kľučky.
Certifikáty
Upozornenie pre vedľajšie vchodové dvere – inštalácia kľučky a uzamykania
Vedľajšie vchodové a balkónové dvere s obojstrannou kľučkou sú dodávané s kľučkou s tzv. aretáciou. K uzamknutiu dverí dochádza na princípe „zdvíhačka“.
Kľučku je nutné najprv zdvihnúť nahor, čím dôjde k aretácii jednotlivých bezpečnostných bodov obvodového kovania.
Nechať kľučku spustiť do vodorovnej polohy.
Teraz je možné dvere zamknúť kľúčom.


Súčasťou dverí je obojstranná kľučka
Súčasťou vedľajších dverí je stavebný zámok s 3 kusmi kľúčov a obojstranná hliníková kľučka s aretáciou. Zmena kľučky na guľu nie je možná (ide to len pri hlavných vchodových dverách).
K bielym dverám dodávame biele krytky a kľučky, pre dvere v dekóre sú krytky a kľučky tmavo hnedé, v prípade antracitového dekóru sú strieborné. Ak by ste chceli inú farbu kľúčok, použite prosím konfigurátor.






.png)













