Vlastnosti plastových sklopno-posuvných dverí REHAU Smartline+ a REHAU SYNEGO AD
Terasové posuvné dvere nemáme skladom, je nutné si ich objednať cez náš konfigurátor. V ponuke sú 3 typy: posuvné krídlo sa posúva doľava, doprava, alebo ich uprostred a po bokoch sú fixné krídla.
Posuvné dvere – porepojenie interiéru s exteriérom
Tento typ dverí označovaných tiež ako PSK portál je modernou alternatívou k balkónovým a francúzskym dverám. Používajú sa k vstupu na verandu, balkón, terasu či záhradu. Jednou rukou ľahko odsuniete posuvné krídlo, a vytvoríte tak súvislé prepojenie interiéru s exteriérom. Dvere zájdu do boku, v izbe ušetríte miesto.
Posuvné krídlo je možné vyklopiť
Posuvno-sklopné plastové dvere sú vybavené i možnosťou ventilácie, posuvné krídlo je možné vyklopiť rovnako ako pri bežných oknách. Ostatné krídla sú fixné. Dvere sú v prahovej rovine osadené plastovým profilom, na ktorom je spodná koľajnice posuvného systému. Prah je vysoký 6,5 cm.
PSK portál
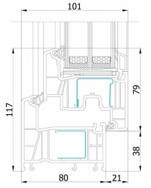
- Hĺbka rámu 80 mm.
- 6 komorový profil.
- K dispozícii dva profilové systémy – REHAU Smartline+ a REHAU SYNEGO AD.
- Vo variante klasik a round line.
- K dispozícii v 29 farbách a dekóroch
Posuvné dvere na terasu predávame v dvoch profilových systémoch
Profilový systém REHAU Smartline+
Ide o päťkomorový profilový systém nemeckej spoločnosti REHAU AG + Co. Stavebná hĺbka je 80 mm. Ponúka výborný pomer ceny a kvality.. Dostupné je prevedenie klasik s rovným krídlom alebo variant round line s predsadeným zaobleným krídlom.PSK portál REHAU Smartline+ je štandardne dodávaný s pokovovaným izolačným dvojsklom (3 mm) a studeným medzisklenným rámčekom. Pre nízkoenergetické domy sa môžu posuvné dvere vyrobiť s izolačným trojsklom a teplým medzisklenným rámčekom. Všetko si navolíte v online konfigurátore. Zasklenie je vhodné na inštaláciu do nadmorskej výšky 600 metrov nad morom. Pre inštaláciu vo väčších nadmorských výškach prosím kontaktujte naše oddelenie zákazníckej starostlivosti.
Profilový systém REHAU SYNEGO AD
Šesťkomorový profilový systém SYNEGO nemeckej spoločnosti REHAU AG + Co. má rovnako ako profilový systém PREMIUM stavebnú hĺbku 80 mm a je k dispozícii s rovným alebo zaobleným krídlom. Vďaka tomu, že je štandardne dodávaný s trojsklom, celkový prestup tepla Uw=0,78 W/m²K, je PSK portál REHAU SYNEGO AD vhodný i do pasívnych domov.
Kvalitné nemecké kovanie – plynulé a jednoduché ovládanie
Dvere na terasu majú zvnútra hliníkovú kľučku a sú osadené kovaním radu duoPort SK od nemeckého výrobcu Winkhaus. Kovanie je dostupné v dvoch variantoch: s ručným ovládaním bez posilovača, alebo s posilovačom, ktorým je tzv. spriahnutá kľučka. Vďaka nej sa i ťažké a veľké krídla ľahko posúvajú alebo vyklápajú. V štandarde ponúkame ručné ovládanie bez posilovača. Pre objednanie varianty ovládania s posilovačom a ďalšie technické detaily kontaktujte našu linku telefonickej podpory.
Portál je možné doplniť o fixné okná či nadsvetlík
Štandardne dodávame terasové dvere do veľkosti 2,1 m (v ľubovoľnom smere). Ak ale potrebujete väčší rozmer, ozvite sa nám a určite vymyslíme riešenie, ktoré bude vyhovovať vašim predstavám. Napríklad je možné posuvné dvere doplniť o bočné fixné okná alebo fixný nadsvetlík.














